美女免费高清在线观看电视剧_西西人体www大胆高清_8090新视觉理论电影电视剧免费观看_国产精品丝袜黑色高跟鞋

全國服務熱線021-64162222

法蘭截止閥閥門首頁 > 產品展示 > 截止閥 > 法蘭截止閥 >

產品名稱:耐高溫蒸汽截止閥j41h—16c dn100生產廠家[ 2023-12-15 ]

訂購熱線:021-64162222
訂購傳真:021-62677999
質量穩定:實行全過程質量監控,細致入微全方位檢測!
價格合理:高效內部成本控制,減少了開支,讓利于客戶
交貨快捷:先進生產流水線,充足的備貨,縮短了交貨期!
  • 產品介紹
  • 規格尺寸
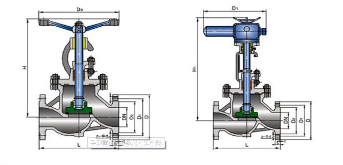
  • 結構圖片
  • 一、耐高溫蒸汽截止閥j41h—16c dn100生產廠家介紹

    上海湖泉閥門集團有限公司J41H-16C 截止閥是一種用于調節、截斷介質流動的閥門,該閥門采用鑄鋼材料制造,具有結構緊湊、操作靈活、密封可靠、耐...鑄鋼法蘭截止閥 的啟閉件是圓柱形的閥瓣,密封面呈平面或錐面,閥瓣沿流體的中心線作直線運動。該產品適用于公稱壓力PN1.6~16.0Mpa,工作溫度-29~550℃的石油、化工、制藥、化肥、電力行業等各種工況的管道上。
    耐高溫蒸汽截止閥j41h—16c dn100生產廠家

    二、耐高溫蒸汽截止閥j41h—16c dn100生產廠家性能參數

    型號 J41H-16C~160C J41Y-16C~160C J41W-16P~160P
    工作壓力(MPa) 1.6~16.0
    適用溫度(℃) ≤425 ≤150
    適用介質 水、蒸汽、油品 弱腐蝕性介質
    材料 閥體、閥蓋 碳素鋼 鉻鎳鈦不銹鋼
    閥桿 鉻不銹鋼 鉻鎳鈦不銹鋼
    密封面 堆焊鐵基合金 堆焊硬基合金 本體材料
    填料 石棉石墨、柔性石墨、聚四氟乙烯

    三、耐高溫蒸汽截止閥j41h—16c dn100生產廠家壓力試驗

    公稱壓力 1.6 2.5 4.0 6.4 10.0 16.0
    強度試驗 2.4 3.8 6.0 9.6 15.0 24.0
    水密封試驗 1.8 2.8 4.4 7.4 11.0 18.0
    上密封試驗 1.8 2.8 4.4 7.04 11.0 18.0
    氣密封試驗 0.4-0.7

    四、手動截止閥主要零件材料及性能零部件材質

    體蓋扳 閥桿 密封面 墊片(環) 填料 工作溫度℃ 適用介質
    WCB 2Cr13 13Cr
    STL
    本體材料
    尼龍
    增強柔性石墨
    1Crl3/柔性石墨
    08軟鋼
    0Cr18Ni9Ti
    OCr18Ni12Mo2Ti
    柔性石墨
    增強柔性石墨
    SFB-260
    SFP-260
    ≤425  
    水、蒸汽、油品
    WC1 38CrMoAI
    25Cr2MoV
    ≤450
    WC6 ≤540
    WC9 ≤570
    ZGCr5Mo ≤540
    ZG1Cr18Ni9Ti 1Cr18Ni9Ti ≤200 硝酸類
    ZGCr18Ni12Mo2Ti 1C18Ni12Mo2Ti ≤200 醋酸類

  • 耐高溫蒸汽截止閥j41h—16c dn100生產廠家
  • 耐高溫蒸汽截止閥j41h—16c dn100生產廠家

上一篇:J941H-16C dn25蒸汽管道用電動法蘭截止閥 / 下一篇:手動截止閥J41H-25P,DN20廠家